







Edificio de 104 viviendas, garajes y trasteros
Propuesta para licitación de vivienda protegida para VIMCORSA
2017
El conjunto de 104 viviendas para Vimcorsa en la parcela 8.8 continúa la investigación tipológica desarrollada por Amasce en Huerta de Santa Isabel Este: una arquitectura doméstica que combina racionalidad estructural, eficiencia ambiental y atención a la escala humana.
El proyecto se organiza en dos volúmenes paralelos entre los que se abre una calle interior peatonal. Este vacío estructurante no solo resuelve la iluminación y ventilación cruzada de todas las viviendas, sino que también crea un espacio comunitario seguro, inclusivo y fácilmente apropiable por sus habitantes.
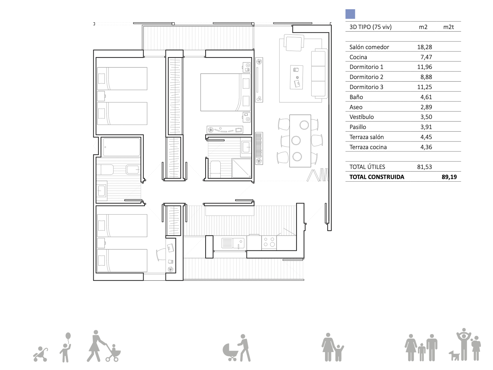
Las viviendas, de tres dormitorios en su mayoría, se diseñan bajo un modelo repetitivo pero flexible, con variaciones en fachada y terrazas que otorgan identidad a cada unidad. Las seis viviendas accesibles en planta baja se integran en el conjunto con itinerarios continuos y espacios libres que fomentan la convivencia.
Los materiales, sobrios y duraderos, responden al clima cordobés: fachadas claras, protecciones solares y sistemas pasivos de control térmico. Los espacios exteriores y ajardinados contribuyen a reducir el impacto climático y a promover una vida comunitaria activa.
Con este proyecto, Vimcorsa y Amasce consolidan una línea de trabajo orientada a la vivienda pública contemporánea, que apuesta por la sostenibilidad, la equidad y la creación de entornos urbanos donde la arquitectura sea, ante todo, una herramienta de bienestar colectivo.
LOCALIZACIÓN: Córdoba
CLIENTE: VIMCORSA
EQUIPO: Amasce & Rubén Díaz & Cruz Blanco & Fernando Osuna
COLABORADORES: -
PEM: +1M €
SUPERFICIE:+2000 m2
Proyectos relacionados
Vivienda unifamiliar entre medianeras en Cerro Muriano, Córdoba
Consultoría de arquitectura para almazara en Antequera
Asistencia técnica Festival Flora
Reforma integral de vivienda en calle Escriba Lubna
Apartamentos Casa Puerta de Córdoba